PROYECTO D.A.

Proyecto:

D.A.

Ubicación:

Ciudad de México

Año:

2021

Estilo:

Mexicano Contemporáneo

Tipo:

Comercial

Área (m2):

29 m2

Paulina, fundadora de Dulce Alma, nos contactó para analizar y mejorar su local comercial en Ciudad de México aprovechando todo lo existente.

Creemos que el 99% de la decoración de su local estaba resuelto con el packaging de sus productos. Solo había que aumentar el área de exhibición, acomodarlos y presumirlos de manera adecuada y ordenada. Las cajas y empaques están divinos, por sí solos son EL elemento decorativo más importante de tu tienda.

Sabíamos que el presupuesto para el proyecto no era muy alto y que contaban ya con muchos elementos que podíamos reutilizar, por esto simplemente propusimos mejorar lo existente y complementarlo con nuevos elementos para hacer del local un espacio más atractivo y muy funcional.
⠀⠀⠀⠀⠀⠀⠀⠀⠀
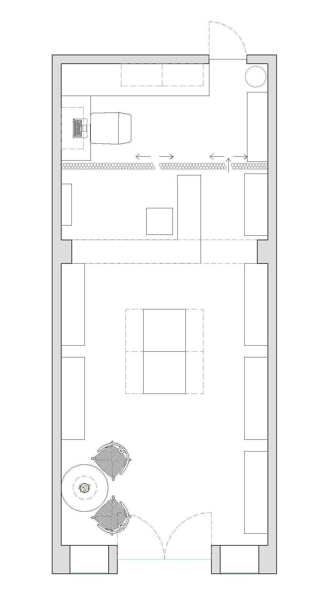
El logo de la tienda estaba poco visible, por lo que propusimos traerlo al frente y hacerlo más llamativo. Diseñamos un par de muebles a la medida que siguen con la misma línea de lo existente y unas vitrinas centrales para mostrar y dar a probar los dulces a los clientes. En la parte de atrás, propusimos un elemento divisor para separar la tienda del Back of House y que no estuviera a la vista el desorden que pudiera haber en el área de servicio y empaque.

Del lado derecho de la tienda propusimos exponer únicamente sus productos para presumir su super diseño de packaging. Y del lado izquierdo exponer diferentes colaboraciones que puedan ser más dinámicas.
⠀⠀⠀⠀⠀⠀⠀⠀⠀
Una de las más importantes es con la fundación Amaneceres en la Obscuridad de productos hechos por internos de la penitenciaría de Santa Martha Acatitla. Gracias a esta colaboración pueden llevar más programas que ayudan a su proceso de reinserción. Además de recolectar los dulces más deliciosos de México se preocupan por ser socialmente responsables. Amamos trabajar con Pau, con sus dulces y con su proyecto.
⠀⠀⠀⠀⠀⠀⠀⠀⠀
Si aún no han probado sus dulces, ¡¿qué esperan?! Los dulces enchilados, increíbles.
⠀⠀⠀⠀⠀⠀⠀⠀⠀
¿Necesitas ayuda con la renovación de alguno de tus espacios?

PROYECTO D.A.